Droomhuis in Heiloo

  • Date
  • Client
  • Category

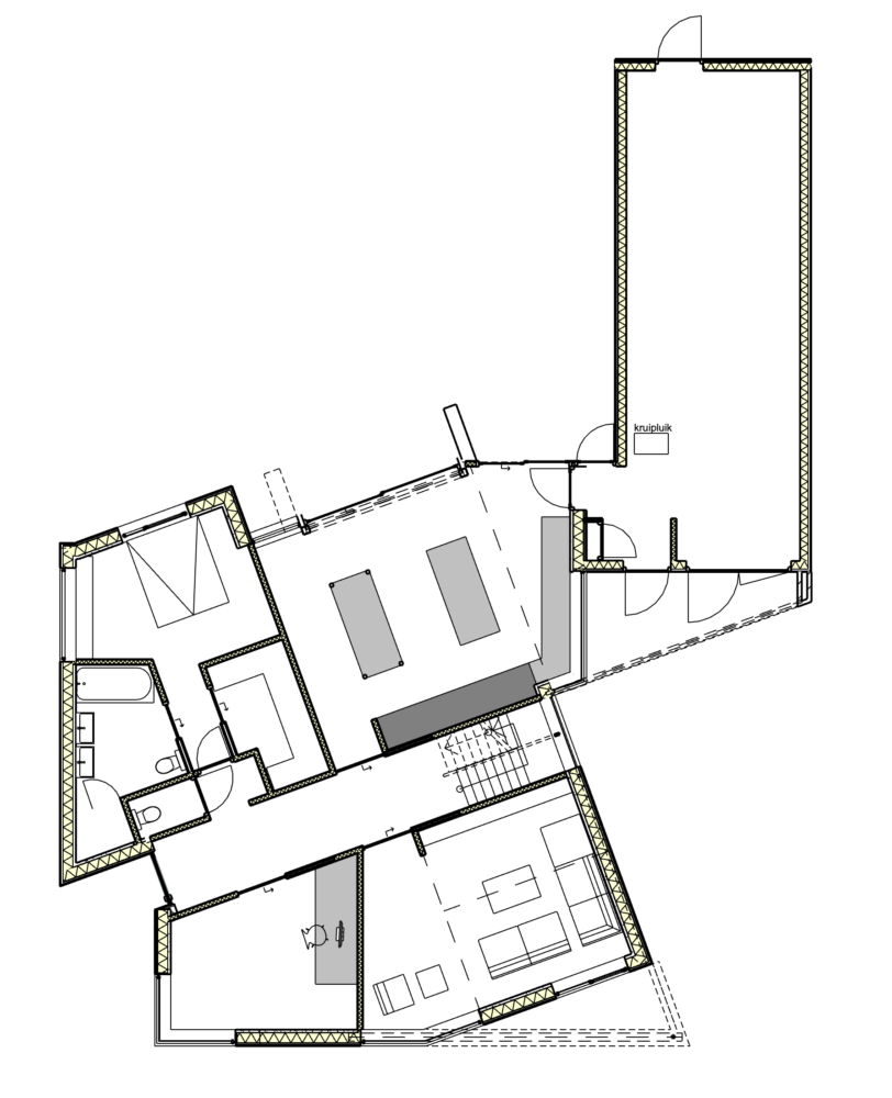
De woning staat deels recht op de kavel en wekt gelijk de indruk onder een hoek geplaatst te zijn.

Een spannende ontwerpopdracht om een woning te maken met de zitkamer aan de schaduwrijke voorgevel en de eetkeuken aan de zonnige achterkant.

Tegelijk zocht ik naar een oplossing om achter in de keuken toch contact te hebben met de straat.

Door een deel van de woning onder een hoek te plaatsen is dit prachtig gelukt…… een geslaagd ontwerp maakt het een bijzonder huis.

De woning van boven gezien tijdens de bouw.

Lekker weer bezig met nieuwe ontwerpen is er nog niet de gelegenheid geweest om aanvullende foto’s te maken.

Als de woning straks helemaal af is zal ik ze plaatsen.

ontwerp van een nieuwe woning

droomhuis in Heiloo